

- 2,688
- m²
Sold Office building
Property description
This tower is a landmark business centre, located in one of Limassol’s main commercial areas.
It offers areas for retail businesses and corporate offices.
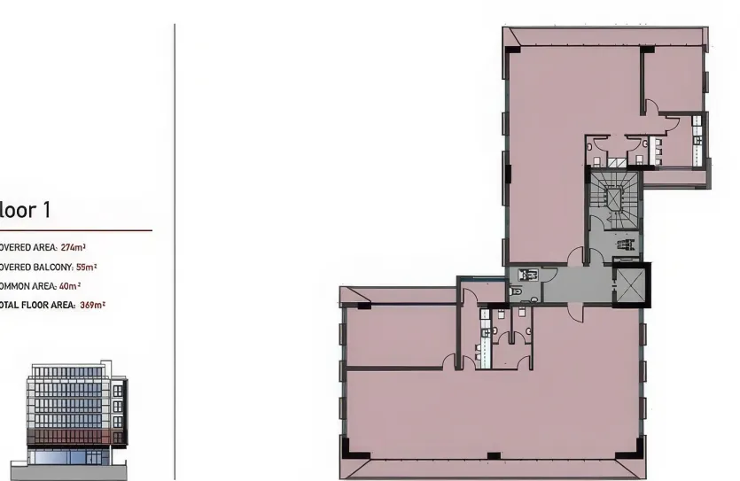
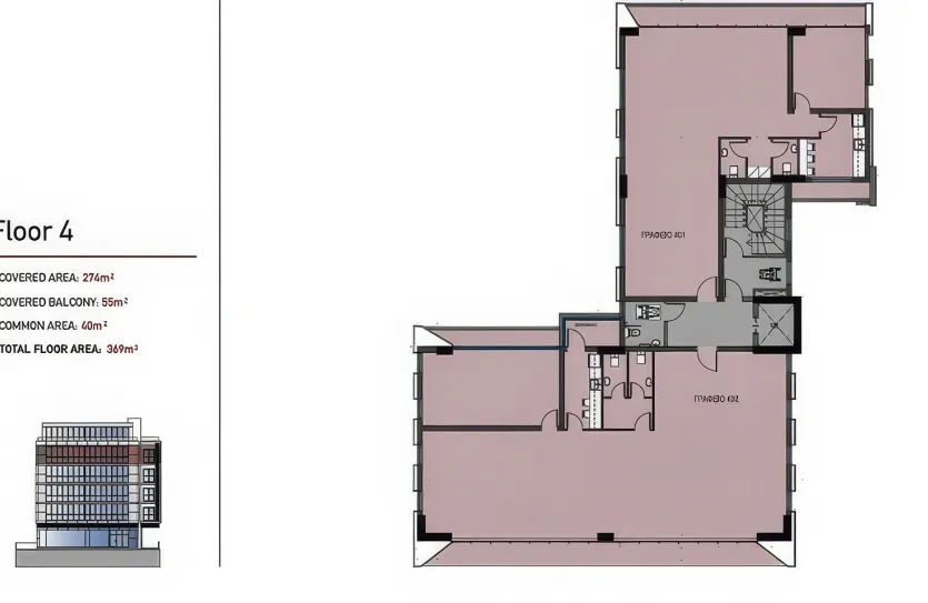
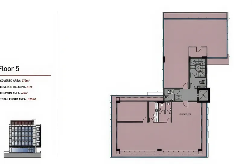
This outstanding building comprises six floors of commercial office space, all of which are meticulously designed to reach the level of quality and high caliber business requires and anticipates.
The floor-to-ceiling windows provide astonishing city and mountain views, complementing the open-plan configuration.
Designed to cater to today’s business needs, the tower provides open areas, giving a light and airy working environment, with floor-to-ceiling windows offering panoramic views across the city, providing stimulation of both creativity and productivity.
Location:
It is located in the Kato Polemidia area, with close proximity to significantly related infrastructures such as respectable business centres, banks, and restaurants.
City centre: 3 km
Limassol Marina: 3 km
Casino: 4.5 km
Motorway: 700 m
Commercial port: 3.5 km
Seafront: 3.5 km
Features:
- Fire alarm
- CCTV cameras
- Raised access floors
- Antistatic HPL
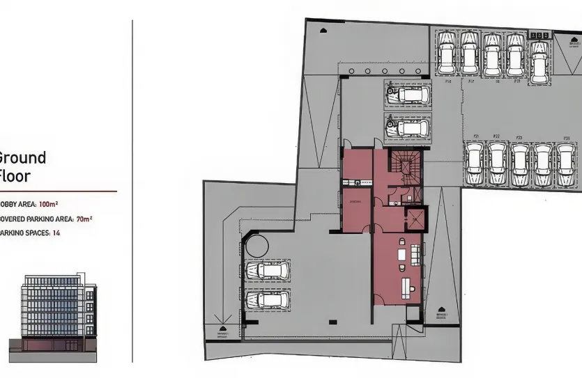
- Parking spaces: 29
Property details
- Updated
- Year built
- Energy class
- A
- Title deeds
- Yes
Price history
| Date | Event | Price |
|---|---|---|
| Sold Price | €11,000,000 +29.4% 4,092 €/m² | |
| Listed for sale | €8,500,000 3,162 €/m² |
Features
- Lift
- Parking space












