

- 4
- спальни
- 3
- санузла
- 421
- м²
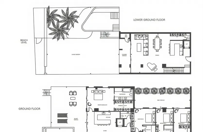
Квартира с 4-мя спальнями в Потамос Гермасойас (ID 13506)
Описание недвижимости
Вдохновленные влиянием ар-деко, сформировавшим золотой век жизни в Ривьере, резиденции были спроектированы как пространство, которое, кажется, органично выросло из древнего прибрежного района.
Приглушенные тона мрамора и дерева дополняют песок и камень побережья, а отблески меди и золота имитируют эффект кипрского солнца, ласкающего нежные морские волны. Простота дизайна позволяет уникальному свету Средиземноморья - вдохновению многих поколений художников - наполнять комнаты, стирая границы между интерьером и экстерьером.
Открытая планировка квартир с одной и двумя спальнями в коллекции резиденций делает эти объекты идеальными для развлечений, а освещенные солнцем террасы позволяют максимально использовать вид на море. Спальни и ванные комнаты роскошно оформлены и предназначены для отдыха и восстановления сил.
Отделка выполнена по высочайшим стандартам с акцентом на безопасность, что позволяет жителям обладать имуществом, которое защищено, где бы они ни находились.
Будучи одним из немногих объектов недвижимости, освобожденных от НДС в Лимассоле, главной горячей точке Кипра, покупатели этой недвижимости могут воспользоваться этим финансовым стимулом, чтобы максимизировать свою покупательную способность.
Технические характеристики квартиры:
- Высокоскоростное телекоммуникационное соединение с прямым оптоволоконным подключением (FTTH) с возможностью выбора провайдера интернет-услуг по желанию покупателя.
- WIFI покрытие во всех помещениях квартир
- Система распределения видео высокой четкости в квартирах
- Интеллектуальная система управления освещением с использованием протокола DALI и диммируемых светодиодных ламп
- Интеллектуальная система управления электрическими жалюзи и шторами, интегрированная с системой освещения
- Центральная система домашней автоматизации в четырехкомнатных квартирах, которой можно управлять как локально, так и с помощью сенсорных панелей
- Система отопления, вентиляции и кондиционирования воздуха
- Распределение аудио/ HD видео
- Система видеодомофонов
- Гибридная (проводная/беспроводная) система охранной сигнализации, включая датчики пожарной сигнализации для каждой квартиры
- Система видеодомофонов (и интеграция с центральной системой домашней автоматизации, где это возможно)
- Системы кондиционирования VRV с тепловым насосом для охлаждения и подогрева полов
- Кондиционеры полностью скрыты в потолках
- Электрические полотенцесушители во всех ванных комнатах
- Во всех ванных комнатах установлена независимая, малошумная система вентиляции
- Во всех (закрытых) помещениях установлены независимые термостаты для независимого управления и контроля температуры
- Независимая система горячего водоснабжения, с системой циркуляции для обеспечения постоянной температуры
- Независимый "умный" счетчик воды
- Переливной бассейн с системой солевого хлорирования и светодиодной многоцветной подсветкой
- Возможность бесключевого доступа в квартиры с помощью мобильных устройств с поддержкой Bluetooth
Технические характеристики коммунальных зон:
- Закрытый автоматический въезд-выезд для автомобилей и доступ для пешеходов через контролируемые ворота
- Высокие ворота и озелененная территория на обочине дороги
- Обеспечение бесключевого доступа к главному входу с помощью мобильного устройства с поддержкой Bluetooth
- Porte cochere
- Открытая наземная и нижняя крытая парковка с естественным освещением и аэрацией
- Удобный для инвалидов дизайн и парковочные места на первом уровне
- Выделенная зона автомойки для любителей автомобилей
- Станции для смены электромобилей, по одной на два парковочных места
- Стойки для парковки велосипедов
- Прачечные
- Частные погреба
- Кладовые
- Двойные панорамные лифты по индивидуальному проекту
Роскошный оздоровительный комплекс, включающий:
- Крытый подогреваемый бассейн с системой солевого хлорирования и светодиодной разноцветной подсветкой
- 35-метровая терраса для загара, окруженная вертикальными садами
- Сауна и паровая баня высокого класса
- Мониторинг общих зон на первом и нижнем этажах с помощью системы видеонаблюдения
- Система защиты освещения с двойными проводниками и главной системой заземления
- Фотоэлектрические панели на крыше, используемые для электропотребления во всех местах общего пользования
- Система смягчения воды, которая будет установлена во всем здании
- Специализированная вентиляционная установка в крытом бассейне, обеспечивающая охлаждение и обогрев в сочетании с вентиляцией свежего воздуха
- Система обнаружения пожара/сигнализации для подвальной парковки и предупредительные ручные пожарные извещатели в местах общего пользования
- Система пожаротушения в местах общего пользования и на подземной парковке с катушками шлангов и ручным огнетушителем
- Система пожаротушения инертным газом для серверной комнаты
- Система экстренного вызова в специально отведенных местах для людей с ограниченными возможностями
- Многозонная аудиосистема со скрытыми в потолке динамиками в местах общего пользования
- Автоматическая система мусоропровода
Пентхаус с 4 спальнями, на берегу моря, 7 этаж:
Внутренняя площадь: 267 м² - 282 м²
Крытая веранда: 31 м² - 55 м²
Незакрытая веранда: 108 м² - 133 м²
Цена: 6,390,120 - 6,422,160
Без НДС
Параметры объекта
- Проверено
- Условия сделки
- Возможен торг
- Год постройки
- Доступно с
- Крытая веранда
- 55 м²
- Открытая веранда
- 133 м²
- ПМЖ за инвестиции
- Да
- Право собственности
- Оформляется
История цен
| Дата | Событие | Цена |
|---|---|---|
| Повышение цены Цена | 6 390 120 € +33.6% 15 178 €/м² | |
| Размещение | 4 783 832 € 11 363 €/м² |
Удобства и оснащение
- VRV-системы
- Качественная сантехника
- Качественные кухонные шкафы и шкафы-купе
- Кладовая
- Комплекс закрытого типа
- Комплекс с удобствами
- Кондиционер
- Консьерж
- Крытая парковка
- Лифт
- Общий бассейн
- Окна из термоалюминия с двойным остеклением
- Переливной бассейн
- Пол с подогревом
- Прачечная
- Сад
- Сауна
- Система охранной сигнализации
- Спа
- Спортзал
- Центральное отопление
Ваш менеджер


















