Объявление скрыто
Продано


14
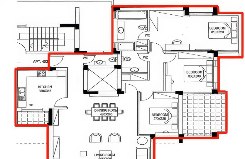
Планировка
€880 000
3 793 €/м²
- 3
- спальни
- 2
- санузла
- 232
- м²
Продано: Квартира с 3-мя спальнями
Агиос Тихонас, Лимассол
Описание недвижимости
Роскошный жилой комплекс с удобствами 5* на берегу моря, расположенный через дорогу от пляжной полосы на очень тихом участке дороги. Это местоположение предоставляет владельцам недвижимости множество замечательных вещей, таких как пляж, который находится всего в нескольких метрах, плюс проект также находится на небольшом расстоянии от пристани для яхт.
Здание сочетает в себе шикарную современную архитектуру с удивительным и несравненным средиземноморским стилем.
Удобства:
- 24-часовое управление недвижимостью
- Круглосуточная охрана и консьерж
- Ландшафтный сад
- Плавательные бассейны
- Игровые площадки
- Многофункциональная спортивная площадка
- Организованный пляж
Этаж:4-й
Крытая площадь: 203 м²
Крытая парковка (2) 23 м²
Подсобное помещение: 6.3 м²
Уровень энергоэффективности: B+
Этап: Завершено
Цена указана с учетом НДС
Параметры объекта
- Обновлено
- Условия сделки
- Возможен торг
- Год постройки
- Область хранения
- 6.30 м²
- Право собственности
- После сдачи
Удобства и оснащение
- Качественная сантехника
- Качественные кухонные шкафы и шкафы-купе
- Кладовая
- Крытая парковка
- Ламинированный пол
- Лифт
- Общий бассейн
- Окна из термоалюминия с двойным остеклением
- Сад
- Сауна
- Современный дизайн
- Спортзал
Район и инфраструктура
Примерное местоположение в Агиос Тихонас, Лимассол















