

- 2150
- m²
Rented Building
Property description
This is a detached whole building in the prime location of Limassol.
The building consists of four floors self-contained and designed to offer space for several uses such as private schools, colleges, office spaces, commercial or retail spaces, and more.
The building has an excellent quality of construction and well-planned interiors.
It is centrally located with very easy access to the motorway and to the two most important arteries of the town of Limassol.
Nearby are located branches of major banks, audit firms, and many other commercial and retail businesses, public schools, colleges, etc.
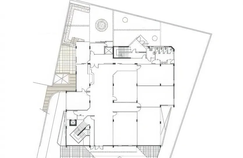
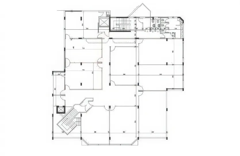
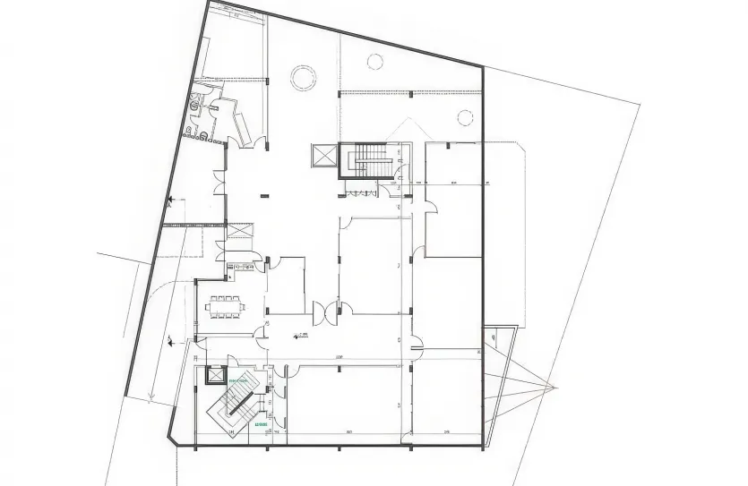
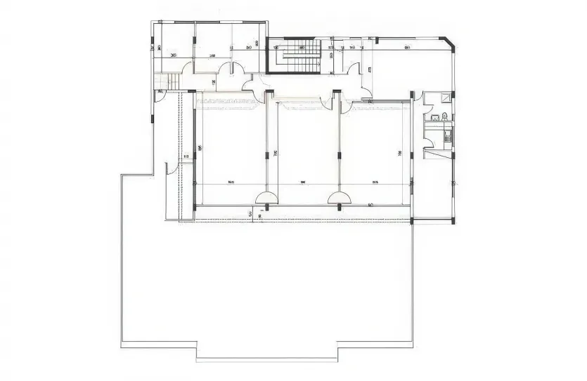
The building compromising:
- Ground floor: 575 m²
- 1st floor: 575 m²
- 2nd floor: 250 m²
- Basement: 750 m² (The basement is currently shaped and transformed into a cafeteria and canteen area)
- External landscaped areas: 600 m²
- Roof garden: 400 m²
There is a separate plot attached to this property of 520 m² which belongs to a separate owner and he is also happy to rent his property for extra cost.
One of the advantages of the building is the private parking area of 12 parking spaces in front of the building, plus there is plenty of public parking space just next to it.
The building also has two large elevators.
Please note that the plans show the premises as they are divided today. The internal walls are all made of gypsum board so any potential tenant can add or remove partitions very easily.
Property details
- Reviewed
- Energy class
- A
Features
- Air conditioning
- Basement
- Lift
- Parking space
- Roof garden



