

- 2
- спальни
- 2
- санузла
- 123
- м²
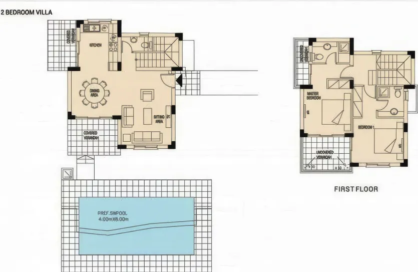
Дом с 2-мя спальнями в Като Пафосе (ID 13082)
Описание недвижимости
Гольф-курорт является одним из самых известных курортов на Кипре. Он включает в себя полностью действующее 18-луночное чемпионское поле для гольфа, спроектированное легендой гольфа Тони Джеклином, и эксклюзивный клубный дом, расположенный в потрясающем месте с видом на море, между городами Пафос и Лимассол, всего в 10 минутах езды от международного аэропорта Пафоса.
Резиденции предлагают широкий выбор средиземноморских и современных вилл с 2, 3 и 4 спальнями для продажи на знаменитом гольф-курорте Кипра. Виллы располагают частными бассейнами на больших участках и выходят на прекрасное Средиземное море.
Это красивая вилла с 2 спальнями в жилом комплексе. Она расположена на берегу моря в тихом районе. Вилла имеет частный бассейн и расположена на большом участке.
Расстояния:
- Аэропорт: 10 мин
- Море: 3 мин
- Магазины: 15 мин
- Гольф: 5 мин
- Здравоохранение: 5 мин
- Образование: 15 мин
Особенности:
- Спальня 2
- Бассейн
Площадь участка: 452.63 м²
Крытая площадь: 123.87 м²
Незакрытые веранды: 17.25 м²
Параметры объекта
- Проверено
- Условия сделки
- Возможен торг
- Дата сдачи
- Открытая веранда
- 17 25 м²
- Класс энергопотребления
- A
- ПМЖ за инвестиции
- Да
- Право собственности
- После сдачи
История цен
| Дата | Событие | Цена |
|---|---|---|
| Повышение цены Цена | 435 000 € +11.5% 3 537 €/м² | |
| Повышение цены Цена | 390 000 € +13.4% 3 171 €/м² | |
| Размещение | 344 000 € 2 797 €/м² |
Удобства и оснащение
- Бассейн
- Кладовая
- Кондиционер
- Парковочное место
- Современный дизайн
Ваш менеджер








