

- 1
- спальня
- 1
- санузел
- 108
- м²
Квартира с 1-ой спальней в Гермасойе (ID 13501)
Описание недвижимости
Вдохновленные влиянием ар-деко, сформировавшим Золотой век жизни на Ривьере, резиденции были спроектированы как пространство, которое, кажется, органично выросло из древнего прибрежного места.
Приглушенные тона мрамора и дерева дополняют песок и камень побережья, а отблески меди и золота имитируют эффект кипрского солнца, ласкающего нежные морские волны. Простота дизайна позволяет уникальному свету Средиземноморья - вдохновению многих поколений художников - наполнять комнаты, стирая границы между интерьером и экстерьером.
Открытая планировка апартаментов с одной и двумя спальнями в коллекции Residences Collection делает их идеальными для развлечений, а освещенные солнцем террасы позволяют максимально использовать вид на море. Спальни и ванные комнаты роскошно оформлены и предназначены для отдыха и восстановления сил.
Отделка выполнена по высочайшим стандартам, особое внимание уделено безопасности, что позволяет жильцам быть уверенными в том, что они защищены, где бы они ни находились.
Как один из немногих вариантов недвижимости, освобожденных от НДС, в Лимассоле, главной горячей точке Кипра, покупатели этой недвижимости могут воспользоваться этим финансовым стимулом, чтобы максимизировать свои возможности для покупки.
Технические характеристики квартиры:
- Высокоскоростное телекоммуникационное соединение с прямым оптоволоконным подключением (FTTH) с возможностью выбора провайдера интернет-услуг по желанию покупателя.
- WIFI покрытие во всех помещениях квартир
- Система распределения видео высокой четкости в квартирах
- Интеллектуальная система управления освещением с использованием протокола DALI и диммируемых светодиодных ламп
- Интеллектуальная система управления электрическими жалюзи и шторами, интегрированная с системой освещения
- Центральная система домашней автоматизации в четырехкомнатных квартирах, которой можно управлять как локально, так и с помощью сенсорных панелей
- Система отопления, вентиляции и кондиционирования воздуха
- Распределение аудио/ HD видео
- Система видеодомофонов
- Гибридная (проводная/беспроводная) система охранной сигнализации, включая датчики пожарной сигнализации для каждой квартиры
- Система видеодомофонов (и интеграция с центральной системой домашней автоматизации, где это возможно)
- Системы кондиционирования VRV Heat Pump для охлаждения и подогрева полов
- Кондиционеры полностью скрыты в потолках
- Электрические полотенцесушители во всех ванных комнатах
- Во всех ванных комнатах установлена независимая, малошумная система вентиляции
- Во всех (закрытых) помещениях будут установлены независимые термостаты для независимого управления и контроля температуры
- Независимая система горячего водоснабжения, с системой циркуляции для обеспечения постоянной температуры
- Независимый "умный" счетчик воды
- Переливной бассейн с системой солевого хлорирования и светодиодной многоцветной подсветкой
- Возможность бесключевого доступа в квартиры с помощью мобильных устройств с поддержкой Bluetooth
Технические характеристики коммунальных зон:
- Закрытый автоматический въезд-выезд для автомобилей и доступ для пешеходов через контролируемые ворота
- Высокие ворота и озелененная территория на обочине дороги
- Обеспечение бесключевого доступа к главному входу с помощью мобильного устройства с поддержкой Bluetooth
- Porte cochere
- Открытая наземная и нижняя крытая парковка с естественным освещением и аэрацией
- Удобный для инвалидов дизайн и парковочные места на первом уровне
- Выделенная зона автомойки для любителей автомобилей
- Станции для смены электромобилей, по одной на два парковочных места
- Стойки для парковки велосипедов
- Прачечные
- Частные погреба
- Кладовые
- Двойные панорамные лифты по индивидуальному проекту
Роскошный оздоровительный комплекс, включающий:
- Крытый подогреваемый бассейн с системой солевого хлорирования и светодиодной разноцветной подсветкой
- 35-метровая терраса для загара, окруженная вертикальными садами
- Сауна и паровая баня высокого класса
- Мониторинг общих зон на первом и нижнем этажах с помощью системы видеонаблюдения
- Система защиты освещения с двойными проводниками и главной системой заземления
- Фотоэлектрические панели на крыше, используемые для электропотребления во всех местах общего пользования
- Система смягчения воды, которая будет установлена во всем здании
- Специализированная вентиляционная установка в крытом бассейне, обеспечивающая охлаждение и нагрев в сочетании с вентиляцией свежего воздуха
- Система обнаружения пожара/сигнализации для парковочной зоны в подвале и предупредительные ручные пожарные извещатели в местах общего пользования
- Система пожаротушения в местах общего пользования и на подземной парковке с катушками шлангов и ручным огнетушителем
- Система пожаротушения инертным газом для серверной комнаты
- Система экстренного вызова в специально отведенных местах для инвалидов
- Многозонная аудиосистема со скрытыми в потолке динамиками в местах общего пользования
- Автоматическая система мусоропровода
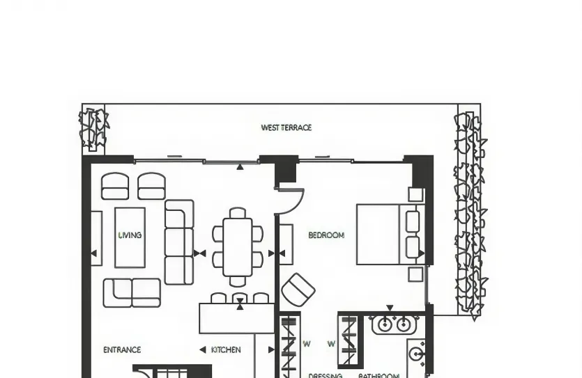
1-комнатная квартира, вид сбоку, 2 этаж:
Внутренняя площадь: 83 м²
Терраса: 25 м²
НДС не облагается
Параметры объекта
- Обновлено
- Условия сделки
- Возможен торг
- Год постройки
- Доступно с
- ПМЖ за инвестиции
- Да
- Право собственности
- Оформляется
История цен
| Дата | Событие | Цена |
|---|---|---|
| Повышение цены Цена | 858 692 € +3.4% 7 951 €/м² | |
| Снижение цены Цена | 830 067 € -3.3% 7 686 €/м² | |
| Повышение цены Цена | 858 690 € +3.4% 7 951 €/м² | |
| Повышение цены Цена | 830 067 € +2.4% 7 686 €/м² | |
| Размещение | 810 915 € 7 508 €/м² |
Удобства и оснащение
- VRV-системы
- Качественная сантехника
- Качественные кухонные шкафы и шкафы-купе
- Кладовая
- Комплекс с удобствами
- Кондиционер
- Консьерж
- Крытая парковка
- Лифт
- Общий бассейн
- Переливной бассейн
- Пол с подогревом
- Сад
- Сауна
- Спортзал
- Центральное отопление
Ваш менеджер


























