

- 2
- beds
- 2
- baths
- 112
- m²
Sold 2-bedroom apartment
Property description
The five floors building is located in a quiet residential area in Linopetra area, Limassol. It has easy access to the highway and all kinds of residential amenities.
Technical specifications and standards:
Foundations & concrete structure
Reinforced concrete based on an anti-seismic design.
Walls
Internal walls: Thermal bricks of 10 cm thickness
External walls: Thermal bricks of 30 cm thickness
Wall finishes: All surfaces will cover with spatula and 3 coats of emulsion paint.
The reinforced concrete frame of the building is covered with
5 cm of insulated polysterene.
Flooring
Living room-kitchen: Marble or granite
Bedrooms: Semi solid parquet
Bathrooms-toilets: Ceramic tiles class A
Entrance and stairs: Natural marble or granite
Plumbing: German style pipe in pipe with manifold system
- Water pressure pump
- Water tank capacities: cold water tank 1400 litres boiler 200 litres
Electrical installations: All electrical installations will be carried out in
compliance with the E.A.C
Electrical accessories by LEGRAND ITALY
Video phone system
Alarm burglar
Cooling and heating: Full installation of central heating-cooling (VRV)
Window frames: UPVC with electrical shutters from DA NOI
Kitchen: Italian from DA NOI
Entrance: Multi-point secure door Italian doors all from DA NOI
Internal doors: Italian from DA NOI
Wardrobes: Italian from DA NOI
Elevator: Schindler 3100
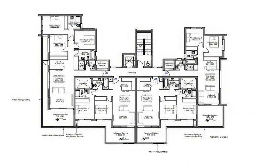
2 Bedroom
Covered area: 81 m²
Covered verandas: 23 m²
Common areas: 8 m²
Total area: 112 m²
Prices are subject to change without notice.
Property details
- Updated
- Pricing terms
- Asking (Negotiable)
- Covered veranda
- 23 m²
- Title deeds
- On completion
Features
- Air conditioning
- Central heating
- High-quality kitchen cabinets & wardrobes
- High-quality sanitary ware
- Lift
- Modern design
- Parking space
- Storage room








